Pieter Wijbengastraat 18 in Leeuwarden

Vraagprijs: € 425.000,00 k.k.

Eengezinswoning uit 2010 met 6 kamers met een woonoppervlakte van 142m2. De woning heeft energielabel A+ en is verkocht o.v..

Omschrijving

Op een prachtige en kindvriendelijke locatie in Leeuwarden, direct gelegen aan open vaarwater en met een eigen aanlegsteiger, staat deze moderne en uitstekend onderhouden tussenwoning (bouwjaar 2010). Hier woont u in een rustige woonomgeving met het comfort van een jonge, volledig geïsoleerde woning én de unieke beleving van wonen aan het water. Met een woonoppervlak van circa 142 m², vijf slaapkamers en drie volwaardige woonlagen is dit een ideale woning voor gezinnen, thuiswerkers of iedereen die ruim en energiezuinig wil wonen.

De woning is volledig geïsoleerd, beschikt over energielabel A+ en is voorzien van 8 zonnepanelen. Dit zorgt niet alleen voor een aangenaam woonklimaat, maar ook voor lage energielasten en toekomstbestendig wooncomfort.

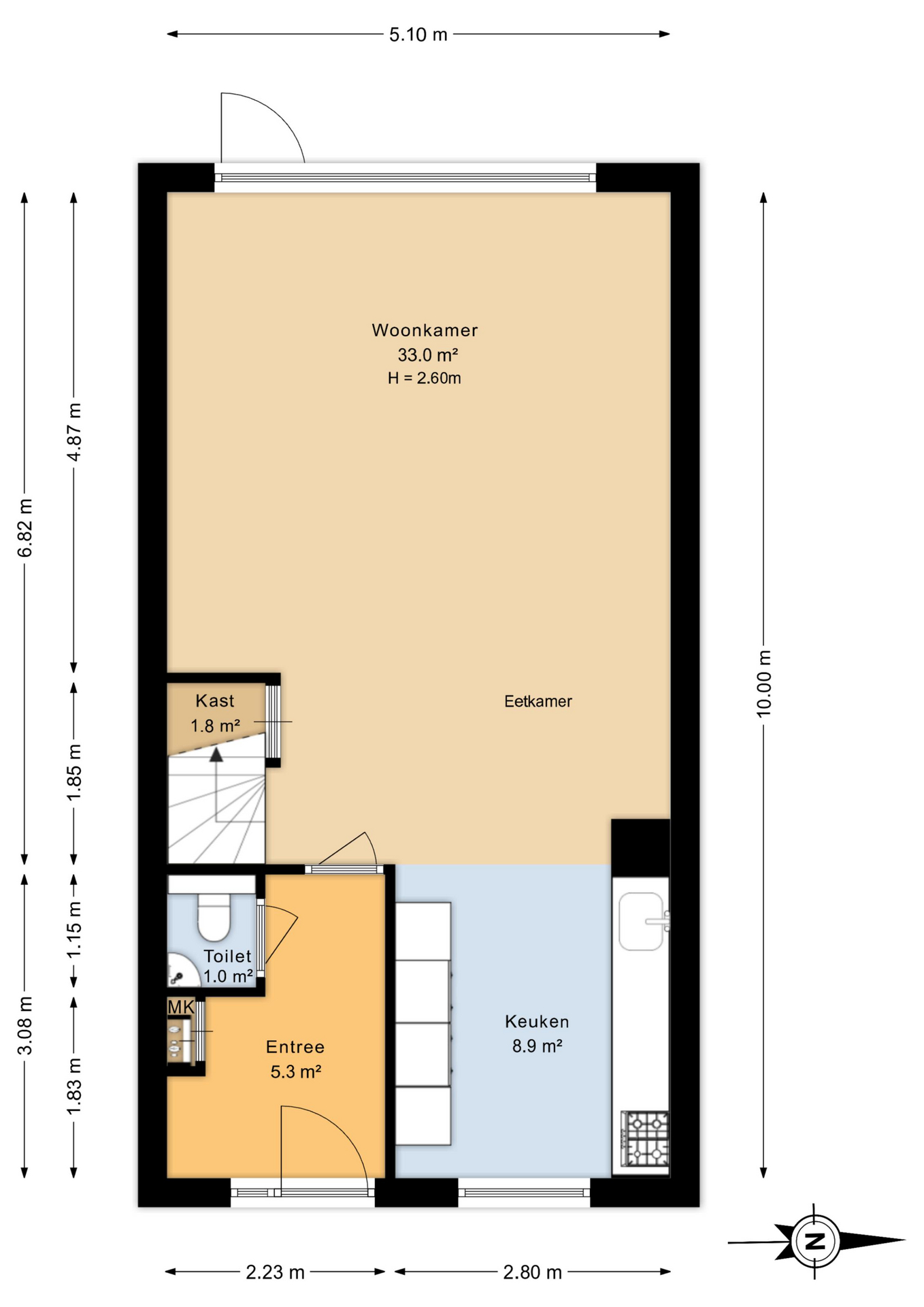
Via de entree bereikt u de hal met meterkast en modern toilet met fonteintje. De sfeervolle, tuingerichte woonkamer van circa 33 m² is heerlijk licht dankzij de grote raampartijen en biedt een prettige verbinding met buiten. Vanuit de woonkamer loopt u direct de achtertuin in, gelegen op het westen, ideaal om tot in de avonduren van de zon te genieten. Aan de voorzijde bevindt zich de moderne open keuken, voorzien van diverse inbouwapparatuur en volop werk- en bergruimte. 

Op de eerste verdieping bevinden zich drie ruime slaapkamers (ca. 8, 11 en 16 m²), alle voorzien van verzwaarde en brandveilige deuren. Twee slaapkamers liggen aan de waterzijde en bieden een prachtig vrij uitzicht over het vaarwater, terwijl de royale slaapkamer aan de voorzijde zich uitstrekt over de volle breedte van de woning en daardoor extra ruim aanvoelt. De nette badkamer is compleet uitgevoerd met een inloopdouche, dubbele wastafel en een tweede toilet. De tweede verdieping beschikt over nog eens twee slaapkamers (ca. 11 en 8 m²), een praktische overloop met wasruimte, volop bergruimte en de cv-opstelling; dankzij de aanwezige dakramen geniet ook deze verdieping van een prettige lichtinval en een comfortabele sfeer.

De verzorgde achtertuin ligt op het westen en grenst direct aan open vaarwater, met circa 42 m² eigen water en een eigen aanlegsteiger. Vanuit uw tuin vaart u zó het Friese vaargebied op en geniet u in alle rust en privacy van een uniek uitzicht. Tussen het terras en het water bevindt zich een stijlvolle glazen afscheiding, uitgevoerd in extra dik veiligheidsglas, wat zorgt voor een open uitstraling met behoud van veiligheid.
Aan de voorzijde beschikt de woning over een ruime oprit met parkeergelegenheid op eigen terrein en een vrijstaande houten berging met elektra, ideaal voor het stallen van fietsen en extra opslag.

De woning is gelegen in een prettige woonomgeving in Leeuwarden, met diverse voorzieningen zoals scholen, winkels, sportfaciliteiten en openbaar vervoer in de nabijheid. Ook het stadscentrum is op korte afstand bereikbaar. Dankzij goede uitvalswegen bent u bovendien snel onderweg richting andere delen van de stad of daarbuiten.

Komt u deze sfeervolle woning zelf ervaren? Wij laten u graag alles zien tijdens een bezichtiging. Vraag eenvoudig een afspraak aan via onze website of via Funda.

Indeling o.a.:

Begane grond:
- entree, ruime hal,
- toilet met fonteintje, meterkast
- trapopgang en trapkast
- royale tuingerichte woonkamer 
- moderne open keuken voorzien van diverse inbouwapparatuur

1e verdieping:
- ruime overloop
- eerste slaapkamer aan voorzijde over gehele breedte (ca. 16 m²)
- nette badkamer uitgerust met een inloopdouche, dubbele wastafel en een tweede toilet.
- tweede slaapkamer aan waterzijde (ca. 11 m²)
- derde slaapkamer aan waterzijde (ca. 8 m²)

2e verdieping:
- ruime overloop met witgoedopstelling
- bergruimte met cv-optelling
- vierde slaapkamer aan waterzijde (ca. 8 m²)
- vijfde slaapkamer aan waterzijde met uitzicht over het water (ca. 11 m²)

Algemeen:
- bouwjaar 2010
- aanlegsteiger met eigen wateroppervlakte van circa 42 m²
- perceeloppervlakte 178 m² (Waarvan 42 m² eigen wateroppervlakte betreft) 
- woonoppervlak 142 m²
- gelegen aan open vaarwater
- cv-ketel: Bosch Bosch 28 HRC, 2010 (eigendom)
- 8 zonnepanelen, Jinko, eigendom (2023)
- capaciteit per paneel: 430Wp
- energielabel A+ (geldig t/m 27-02-2036)
- zeer goed onderhouden

Plan hier je bezichtiging

Kenmerken

Status Verkocht onder voorbehoud
Vraagprijs € 425.000,00 k.k.
Oplevering In overleg
Energielabel A+
Bouwjaar 2010
Perceeloppervlakte 178 m2
Inhoud 523 m3
Woonoppervlakte 142 m2
Aantal kamers 6
Aantal badkamers 1
Buitenruimte Achtertuin, voortuin
Ligging tuin West
Oppervlakte 28 m2
Garage Geen garage
Type woning Eengezinswoning

Video

Plattegrond

Klik op de plattegrond hieronder om alle plattegronden te bekijken.

Pieter Wijbengastraat 18 in Leeuwarden

Wat onze opdrachtgevers zeggen.

9.5

Op basis van 61 beoordelingen

10.0
Leuke proactieve makelaar, met veel kennis van de lokale markt. Weet precies wat de aandachtspunten voor de woning zijn, en hoe dit goed te verkopen.
Een funda gebruiker
Via: Funda
9.0
Wij zijn er open ingegaan en het liep fantastisch Service prima en behulpzaam verkoop ging voorspoedig en vlot Goede prijs gekregen verder verloop uitstekend Van beide zijden tevreden denk ik👌
Mevr. A.C. Meindertsma-Reitsma
Via: Funda
9.3
Hele fijne samenwerking met Rick en zijn collegas. Ze verstaan hun vak en hebben veel lokale kennis. De manier van communiceren is lekker informeel en kan via whatsapp, soms wel wat reactief in plaats van proactief. Maar dat zou dan ook het enige verbeterpuntje zijn. Wij zijn dik tevreden en zouden deze makelaar aanbevelen.
Loes Brinkman
Via: Funda

Laten we kennismaken

  • Verkoop
  • Aankoop
  • Taxatie
  • Hypotheek
Maandag bereikbaar vanaf 08:30