Kwelderstraat 46 in Leeuwarden

Vraagprijs: € 295.000,00 k.k.

Eengezinswoning uit 1963 met 5 kamers met een woonoppervlakte van 92m2. De woning heeft energielabel D en is verkocht.

Omschrijving

Voor een efficiënte afhandeling van bezichtigingen verzoeken wij u vriendelijk om deze uitsluitend digitaal aan te vragen via Funda of onze website, zodat uw aanvraag snel en overzichtelijk kan worden verwerkt. Wij nemen vervolgens zo spoedig mogelijk contact met u op.

Bent u op zoek naar een fijne gezinswoning met vier slaapkamers, een zonnige achtertuin én een separate stenen garage? Dan is deze woning aan de Kwelderstraat in Leeuwarden zeker het bekijken waard! Gelegen in de rustige en kindvriendelijke wijk Nijlân, met alle voorzieningen zoals winkels, scholen en uitvalswegen op korte afstand, biedt deze woning alles wat u nodig heeft voor comfortabel wonen.

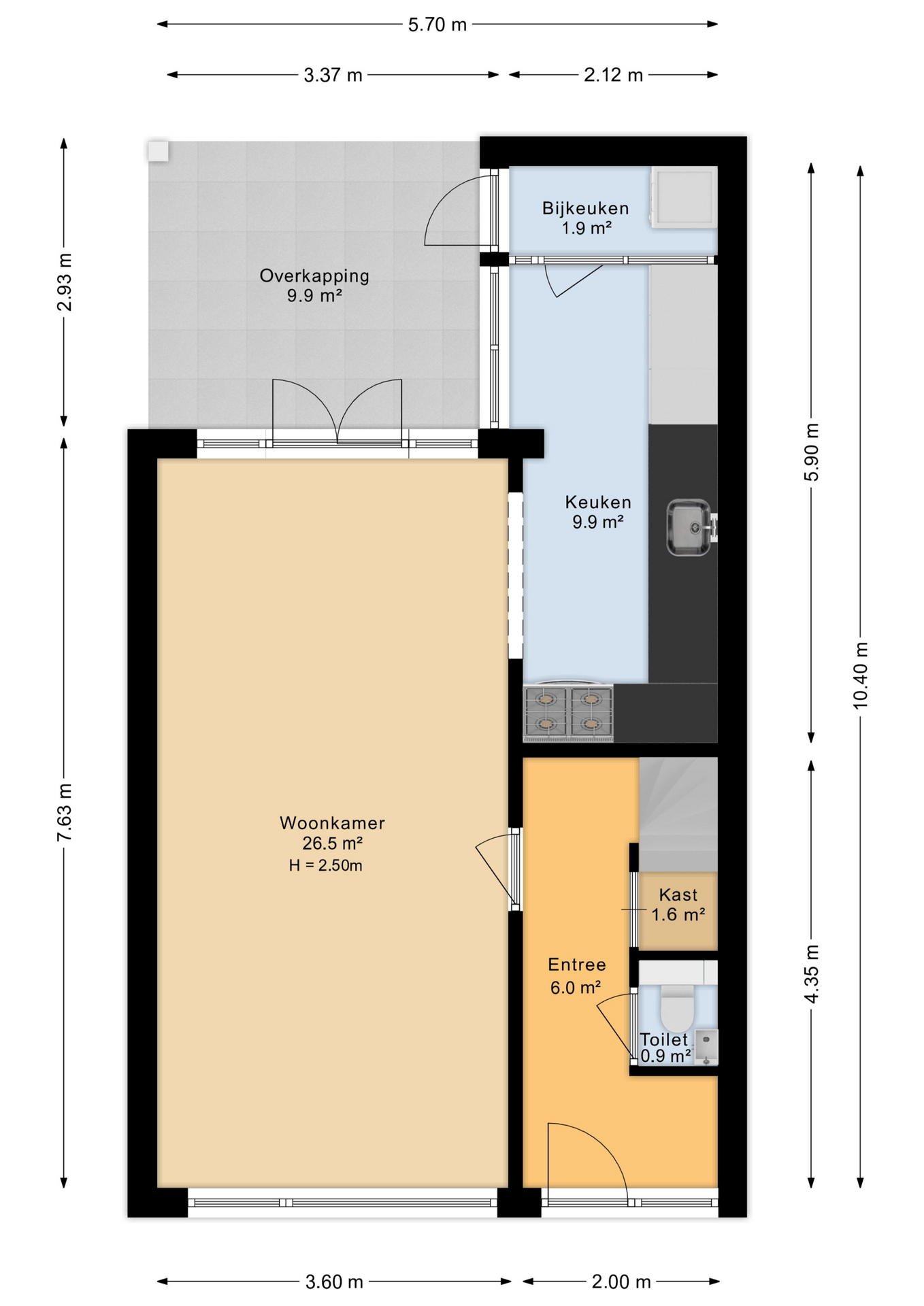
Via de ruime hal, met modern toilet voorzien van fonteintje, trapopgang en trapkast, bereikt u de lichte woonkamer van circa 27 m². Dankzij de grote raampartijen en openslaande deuren naar de achtertuin geniet u hier van veel natuurlijk licht. De aangrenzende keuken biedt voldoende werk- en kastruimte en is voorzien van diverse inbouwapparatuur. Vanuit de keuken heeft u toegang tot de praktische bijkeuken, waar zich de witgoedopstelling en extra bergruimte bevinden.

Op de eerste verdieping bereikt u via de trapopgang de ruime overloop, die toegang biedt tot maar liefst vier slaapkamers en de badkamer. Dit maakt de woning ideaal voor een gezin, maar biedt ook mogelijkheden voor een werkkamer of hobbyruimte. Aan de voorzijde van de woning bevinden zich twee slaapkamers van circa 9 m² en 5 m², terwijl aan de achterzijde nog twee slaapkamers van circa 10 m² en 6 m² te vinden zijn. De badkamer is netjes afgewerkt en voorzien van een douche, toilet en wastafelmeubel.

De ruime achtertuin, met achterom van circa 37 m² ligt op het zuiden, waardoor u de hele dag door heerlijk van de zon kunt genieten. De tuin is voorzien van een gezellige overkapping en vindt u hier een praktische stenen berging van circa 8 m². Daarnaast beschikt de woning over een ruime, vrijstaande stenen garage (afm. 5,77m x 2,77m). Ideaal voor het stallen van uw auto, fietsen of als extra opslagruimte. De wijk Nijlân in Leeuwarden staat bekend als een groene en kindvriendelijke woonomgeving met veel parken, bomen en speelplekken. Wandelen kan ook langs het van Harinxmakanaal. Er is een compleet aanbod aan voorzieningen, waaronder een winkelcentrum met supermarkt en bakker, een gezondheidscentrum en meerdere scholen. Dankzij de ruime opzet en het vele groen is het er rustig wonen, terwijl de binnenstad en de uitvalswegen richting de rest van Friesland snel en gemakkelijk bereikbaar zijn.

Interesse in deze woning? Maak een afspraak voor een bezichtiging. Wij laten u deze prachtige woning graag zien!

Indeling o.a.:

Begane grond:
- entree
- ruime hal met trapopgang
- modern vrij hangend toilet met fonteintje
- royale doorzonwoonkamer (ca. 27 m²)
- keuken voorzien van diverse inbouwapparatuur en loopdeur richting de achtertuin
- praktische bijkeuken met witgoedopstelling en extra bergruimte
- verzorgde achtertuin van ca. 37 m² met achterom en externe stenen berging (ca. 8 m²)

Verdieping:
- ruime overloop
- slaapkamer 1 aan voorzijde met vaste kast (ca. 5 m²)
- slaapkamer 2 aan voorzijde (ca. 9 m²)
- badkamer met wastafelmeubel, douche en tweede toilet
- slaapkamer 3 aan achterzijde (ca. 10 m²)
- slaapkamer 4 aan achterzijde (ca. 6 m²)

Bijzonderheden:
- bouwjaar 1963
- woonoppervlakte 92 m²
- perceeloppervlakte woning 138 m²
- energielabel D
- meterkast vernieuwd in 2024, aanleg extra groepen en groep voor zonnepanelen
- ruime externe garage (ca. 16 m²) (hoogte 2,25m)
- erfpacht garage € 92, - per jaar (Kwelderstraat 42b)
- dak van de garage is begin 2025 in zijn geheel vervangen
- overdracht c.q. aanvaarding per vanaf 2 februari 2026

Plan hier je bezichtiging

Kenmerken

Status Verkocht
Vraagprijs € 295.000,00 k.k.
Oplevering In overleg
Energielabel D
Bouwjaar 1963
Perceeloppervlakte 157 m2
Inhoud 336 m3
Woonoppervlakte 92 m2
Aantal kamers 5
Aantal badkamers 1
Buitenruimte Achtertuin, voortuin
Ligging tuin Zuid
Oppervlakte 37 m2
Garage Vrijstaand steen
Type woning Eengezinswoning

Video

Plattegrond

Klik op de plattegrond hieronder om alle plattegronden te bekijken.

Kwelderstraat 46 in Leeuwarden

Wat onze opdrachtgevers zeggen.

9.5

Op basis van 54 beoordelingen

7.5
Laagdrempelig contact mogelijk, afstemming/contact in het begin nog zoeken naar juiste modus. Maar geheel op maat opgepakt!
Een funda gebruiker
Via: Funda
10.0
Wij zijn bijzonder tevreden over Laurens en zijn team. Het contact is ontstaan bij het bezichtigen van een, via deze makelaar, aangeboden woning. We hebben Laurens ervaren als een prettig en benaderbaar mens en we voelden ons niet als “een Klant”. Hij heeft ons niet een woning verkocht, maar voor ons werd het een vanzelfsprekendheid dat Laurens onze verkoopmakelaar zou worden. In de fase voordat onze woning in de verkoop is gebracht heeft hij ons uitgebreid van informatie voorzien zodat we echt goed voorbereid waren. Op vragen van ons is snel en goed gereageerd. Omdat de samenwerking erg goed is maak je als verkopers als het ware deel uit van het team De woning is vervolgens sneller verkocht dan andere woningen in ons gebied. Wij zijn ervan overtuigd dat dit zeker te maken heeft met de manier waarop Laurens met mensen omgaat.
Een funda gebruiker
Via: Funda
10.0
Leuke proactieve makelaar, met veel kennis van de lokale markt. Weet precies wat de aandachtspunten voor de woning zijn, en hoe dit goed te verkopen.
Een funda gebruiker
Via: Funda

Laten we kennismaken

  • Verkoop
  • Aankoop
  • Taxatie
  • Hypotheek
Morgen bereikbaar vanaf 08:30