Kamgras 149 in Leeuwarden

Vraagprijs: € 295.000,00 k.k.

Eengezinswoning uit 1973 met 5 kamers met een woonoppervlakte van 110m2. De woning heeft energielabel C en is verkocht.

Omschrijving

Aan het Kamgras 149, op een groene en prettige locatie in de wijk, staat deze verrassend ruime en verzorgde hoekwoning uit 1973. Hier komen licht, leefruimte en een zonnige ligging samen: met 110 m² woonoppervlak, vier slaapkamers en een tuin op het zuiden is dit een plek waar comfortabel wonen direct voelbaar is.

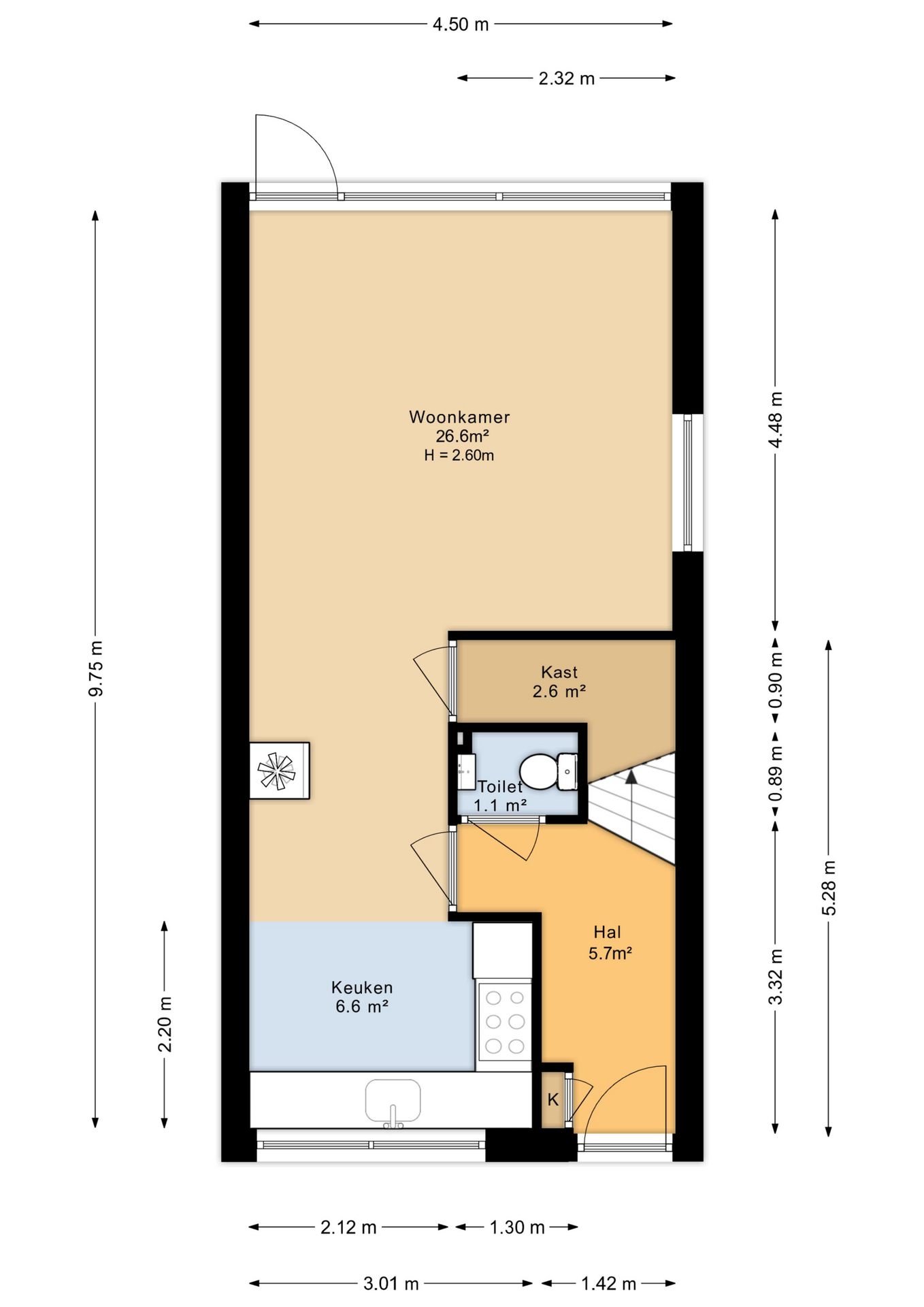
Via de entree bereikt u de ruime hal met meterkast, het toilet met fonteintje en de trapopgang. De lichte woonkamer van circa 27 m² biedt een prettige leefruimte met veel daglicht. De moderne open keuken is uitgerust met diverse inbouwapparatuur.

Op de eerste verdieping bevinden zich drie ruime slaapkamers van respectievelijk 8, 9 en 15 m². Twee slaapkamers liggen aan de voorzijde van de woning, terwijl de royale slaapkamer aan de achterzijde zich uitstrekt over de volledige breedte van de woning. De moderne badkamer is ingericht met een inloopdouche, een wastafelmeubel met dubbele kranen en een tweede toilet.

De tweede verdieping is ruim en multifunctioneel. Hier bevindt zich de vierde slaapkamer van circa 13 m², die desgewenst ook kan worden ingericht als hobbykamer of royale werkkamer. Op de overloop vindt u de witgoedopstelling en een afgesloten ruimte voor de cv-installatie. Daarnaast biedt deze verdieping volop extra bergruimte.

De woning beschikt over een ruime voor-, zij- én achtertuin. De achtertuin van circa 65 m² ligt op het zuiden, ideaal voor wie graag van de zon geniet. In de voortuin staat een praktische stenen berging, perfect voor het stallen van fietsen en tuingereedschap. Bovendien is de dakbedekking van deze berging in 2024 volledig vernieuwd.

De wijk Aldlân is een rustige en groene woonomgeving in het zuiden van Leeuwarden. De buurt biedt diverse voorzieningen zoals supermarkten, scholen en sportfaciliteiten. Het centrum van Leeuwarden is binnen enkele minuten bereikbaar en dankzij de nabijgelegen uitvalswegen bent u snel onderweg richting Drachten, Heerenveen en Groningen.

Komt u deze fijne woning bekijken? We laten u graag alles zien! Vraag een bezichtiging aan via onze website of via Funda.

Indeling o.a.:

Begane grond:
- entree, ruime hal
- toilet met fonteintje, meterkast en trapopgang
- L-vormige royale woonkamer met veel lichtinval
- moderne open keuken voorzien van diverse inbouwapparatuur

1e verdieping:
- overloop
- slaapkamer 1 aan voorzijde (ca. 8 m²)
- slaapkamer 2 aan voorzijde (ca. 9 m²)
- moderne badkamer voorzien van inloopdouche, wastafelmeubel met twee kranen en tweede toilet
- slaapkamer 3 aan achterzijde over gehele breedte (ca. 15 m²)

2e verdieping:
- overloop met witgoesopstelling
- slaapkamer 4, ook in te richten als hobbykamer of royale werkkamer. (ca. 13 m²)
- berging met cv-opstelling

Algemeen:
- bouwjaar 1973
- perceeloppervlakte 207 m²
- woonoppervlak 110 m²
- cv-ketel: Bosch 24 HRC 2018 (eigendom)
- moderne keuken en badkamer
- energielabel C (geldig t/m 23-03-2032)
- dakbedekking van berging volledig vernieuwd in 2024

Plan hier je bezichtiging

Kenmerken

Status Verkocht
Vraagprijs € 295.000,00 k.k.
Oplevering In overleg
Energielabel C
Bouwjaar 1973
Perceeloppervlakte 207 m2
Inhoud 405 m3
Woonoppervlakte 110 m2
Aantal kamers 5
Aantal badkamers 1
Buitenruimte Achtertuin, voortuin, zijtuin
Ligging tuin Zuid
Oppervlakte 67 m2
Garage Geen garage
Type woning Eengezinswoning

Video

Plattegrond

Klik op de plattegrond hieronder om alle plattegronden te bekijken.

Kamgras 149 in Leeuwarden

Wat onze opdrachtgevers zeggen.

9.5

Op basis van 54 beoordelingen

7.5
Laagdrempelig contact mogelijk, afstemming/contact in het begin nog zoeken naar juiste modus. Maar geheel op maat opgepakt!
Een funda gebruiker
Via: Funda
10.0
Wij zijn bijzonder tevreden over Laurens en zijn team. Het contact is ontstaan bij het bezichtigen van een, via deze makelaar, aangeboden woning. We hebben Laurens ervaren als een prettig en benaderbaar mens en we voelden ons niet als “een Klant”. Hij heeft ons niet een woning verkocht, maar voor ons werd het een vanzelfsprekendheid dat Laurens onze verkoopmakelaar zou worden. In de fase voordat onze woning in de verkoop is gebracht heeft hij ons uitgebreid van informatie voorzien zodat we echt goed voorbereid waren. Op vragen van ons is snel en goed gereageerd. Omdat de samenwerking erg goed is maak je als verkopers als het ware deel uit van het team De woning is vervolgens sneller verkocht dan andere woningen in ons gebied. Wij zijn ervan overtuigd dat dit zeker te maken heeft met de manier waarop Laurens met mensen omgaat.
Een funda gebruiker
Via: Funda
10.0
Leuke proactieve makelaar, met veel kennis van de lokale markt. Weet precies wat de aandachtspunten voor de woning zijn, en hoe dit goed te verkopen.
Een funda gebruiker
Via: Funda

Laten we kennismaken

  • Verkoop
  • Aankoop
  • Taxatie
  • Hypotheek
Morgen bereikbaar vanaf 08:30