Aert van der Neerstraat 5 in Leeuwarden

Vraagprijs: € 325.000,00 k.k.

Eengezinswoning uit 1940 met 5 kamers met een woonoppervlakte van 108m2. De woning heeft energielabel B en is beschikbaar.

Omschrijving

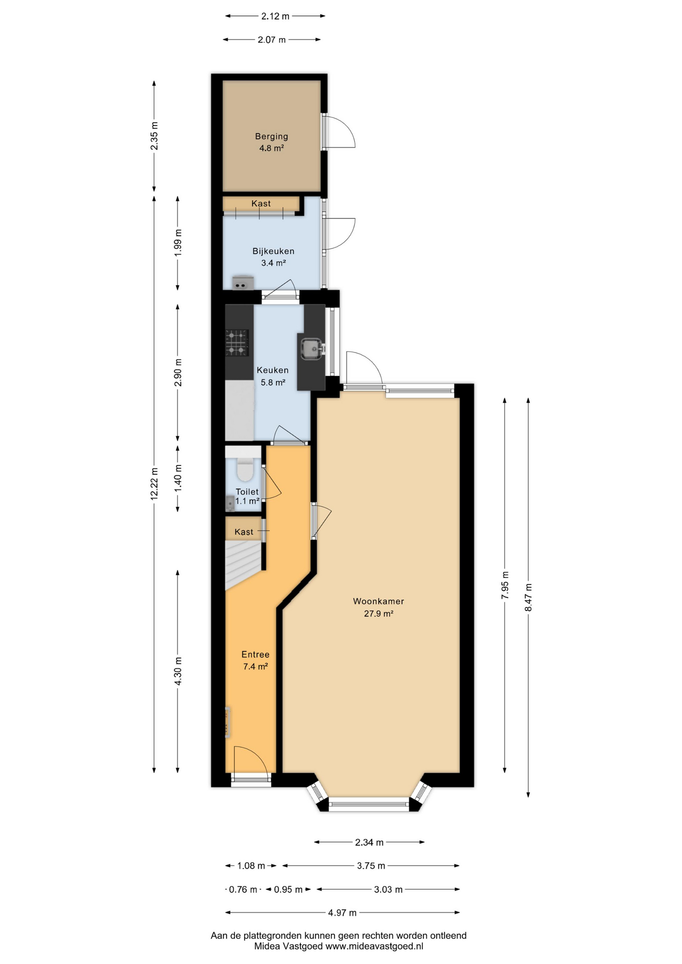
Aan de Aert van der Neerstraat in de gewilde wijk Huizum staat deze verrassend ruime en goed onderhouden tussenwoning (bouwjaar 1940, energielabel B) met vier slaapkamers, verdeeld over de verdieping en een grote zolderverdieping. En een bijzonder diepe, zonnige achtertuin op het zuiden. De woning combineert comfort en functionaliteit met een uitstekende ligging nabij het centrum, winkelstraat de Schrans, het NS-station en Frisius MC. Met een woonoppervlakte van circa 108 m² en een perceel van 161 m² eigen grond is dit een ideale woning voor gezinnen en doorstromers die ruim en centraal willen wonen.

Bij binnenkomst wordt u verwelkomd in een nette hal met toegang tot het toilet, trapkast, de meterkast en de trapopgang. Vanuit hier loopt u door naar de lichte woonkamer, waar de prettige lichtinval en open indeling direct opvallen. De keuken met inbouwapparatuur sluit hier mooi op aan en is praktisch ingericht met voldoende werk- en bergruimte. Aansluitend bevindt zich de bijkeuken met witgoedaansluitingen en extra opbergmogelijkheden. De gehele begane grond is uitgevoerd met een betonvloer voorzien van vloerverwarming, wat zorgt voor een comfortabel en gelijkmatig woonklimaat.

Op de eerste verdieping bevinden zich drie slaapkamers en de badkamer, voorzien van een inloopdouche, wastafel en toilet. De slaapkamers met vaste kasten zijn praktisch van formaat en flexibel in te delen. Via een vaste trap bereikt u de ruime zolderverdieping, die uitstekend kan dienen als vierde slaapkamer, werkruimte of hobbyruimte.

De achtertuin is een echte meerwaarde: circa 16 meter diep, gelegen op het zuiden en voorzien van een achterom. Hier geniet u volop van zon, rust en ruimte. Tevens beschikt de woning over een aangebouwde stenen berging met elektra. De woning ligt in een rustige woonwijk met alle voorzieningen binnen handbereik. Winkels, scholen en sportfaciliteiten bevinden zich op korte afstand, evenals het centrum van Leeuwarden en het station.

Kortom: een sfeervolle en ruime jaren ’40 woning met authentieke details, veel leefruimte en een uitstekende ligging in de wijk Huizum, vlakbij het centrum, NS-station etc. Bent u op zoek naar karakter, ruimte en een toplocatie? Dan is dit uw kans. Maak snel een afspraak voor een bezichtiging.

Doe een aanvraag via Funda en ontvang direct onze bezichtigingsplanner; u kunt dus zelf een bezichtiging inplannen!

Indeling o.a.:

Begane grond:
- entree met toilet, meterkast (moderne groepenkast) en trapopgang
- lichte woonkamer (ca. 28 m²)
- keuken met inbouwapparatuur en met praktische indeling
- bijkeuken met witgoedaansluitingen
- betonvloer met vloerverwarming op de gehele begane grond

1e verdieping:
- overloop
- drie slaapkamers (ca. 6 m², 10 m² en 11 m²)
- badkamer met inloopdouche, wastafel en toilet

2e verdieping:
- ruime zolderverdieping
- vaste trap, geïsoleerd, dakraam en wastafel
- geschikt als vierde slaapkamer of werkruimte

Algemeen:
- bouwjaar 1940
- woonoppervlakte 108 m²
- perceeloppervlakte 161 m² eigen grond
- energielabel B
- vier slaapkamers
- grote zolderverdieping
- zeer diepe achtertuin (ca. 16 m) op het zuiden met achterom
- grote voortuin
- aangebouwde stenen berging met elektra
- gelegen nabij centrum, De Schrans, NS-station en Frisius MC
- directe aanvaarding is mogelijk

Plan hier je bezichtiging

Kenmerken

Status Beschikbaar
Vraagprijs € 325.000,00 k.k.
Oplevering In overleg
Energielabel B
Bouwjaar 1940
Perceeloppervlakte 161 m2
Inhoud 400 m3
Woonoppervlakte 108 m2
Aantal kamers 5
Aantal badkamers 1
Buitenruimte Achtertuin, voortuin
Ligging tuin Zuid
Oppervlakte 90 m2
Garage Geen garage
Type woning Eengezinswoning

Video

Plattegrond

Klik op de plattegrond hieronder om alle plattegronden te bekijken.

Aert van der Neerstraat 5 in Leeuwarden

Wat onze opdrachtgevers zeggen.

9.5

Op basis van 54 beoordelingen

7.5
Laagdrempelig contact mogelijk, afstemming/contact in het begin nog zoeken naar juiste modus. Maar geheel op maat opgepakt!
Een funda gebruiker
Via: Funda
10.0
Wij zijn bijzonder tevreden over Laurens en zijn team. Het contact is ontstaan bij het bezichtigen van een, via deze makelaar, aangeboden woning. We hebben Laurens ervaren als een prettig en benaderbaar mens en we voelden ons niet als “een Klant”. Hij heeft ons niet een woning verkocht, maar voor ons werd het een vanzelfsprekendheid dat Laurens onze verkoopmakelaar zou worden. In de fase voordat onze woning in de verkoop is gebracht heeft hij ons uitgebreid van informatie voorzien zodat we echt goed voorbereid waren. Op vragen van ons is snel en goed gereageerd. Omdat de samenwerking erg goed is maak je als verkopers als het ware deel uit van het team De woning is vervolgens sneller verkocht dan andere woningen in ons gebied. Wij zijn ervan overtuigd dat dit zeker te maken heeft met de manier waarop Laurens met mensen omgaat.
Een funda gebruiker
Via: Funda
10.0
Leuke proactieve makelaar, met veel kennis van de lokale markt. Weet precies wat de aandachtspunten voor de woning zijn, en hoe dit goed te verkopen.
Een funda gebruiker
Via: Funda

Laten we kennismaken

  • Verkoop
  • Aankoop
  • Taxatie
  • Hypotheek
Maandag bereikbaar vanaf 08:30